Projekt Am Rädlesbach im Gemeinderat vorgestellt
Bad Waldsee – Das große Wohnbau-Projekt „Am Rädlesbach“ wurde von der Bildschirmzeitung (DBSZ) schön öfter ausführlich dargestellt. Hier nun die Behandlung des städtebaulich bedeutsamen Konzeptes im Gemeinderat.
Der Kindergarten
Bürgermeisterin Monika Ludy ging in ihrer Vorstellung des Projektes auf den dringend benötigten Wohnraum ein, auch barrierefreie Wohnungen würden hier entstehen. Zirka 10 Prozent der Bebauung seien als Gewerbeflächen vorgesehen. Gleich im ersten Bauabschnitt soll ein fünfgruppiger Kindergarten entstehen. Das städtebaulich spannende Projekt, bei dem viele vorher versiegelte Flächen entsiegelt würden, biete über Jahre die Chance der Weiterentwicklung.
In die Ausschreibung des Wettbewerbes wurden die Ideen der Bürgerbefragung und des Workshops mit einbezogen. Sie lobte die Zusammenarbeit mit i+R Wohnbau Lindau als verlässlichem Partner. Jetzt, nach anderthalb Jahren der Vorbereitung stünden die Sieger fest (die DBSZ hat den Siegerentwurf ausführlich dargestellt).
Ausstellung im Historischen Rathaus
Alle sieben Projekte sind im Historischen Rathaus, zweiter Stock, ausgestellt. Bis 8. Dezember kann man betrachten, was Architektur- und Stadtplanungssachverstand zuwegegebracht haben.
Die Grüne Fuge
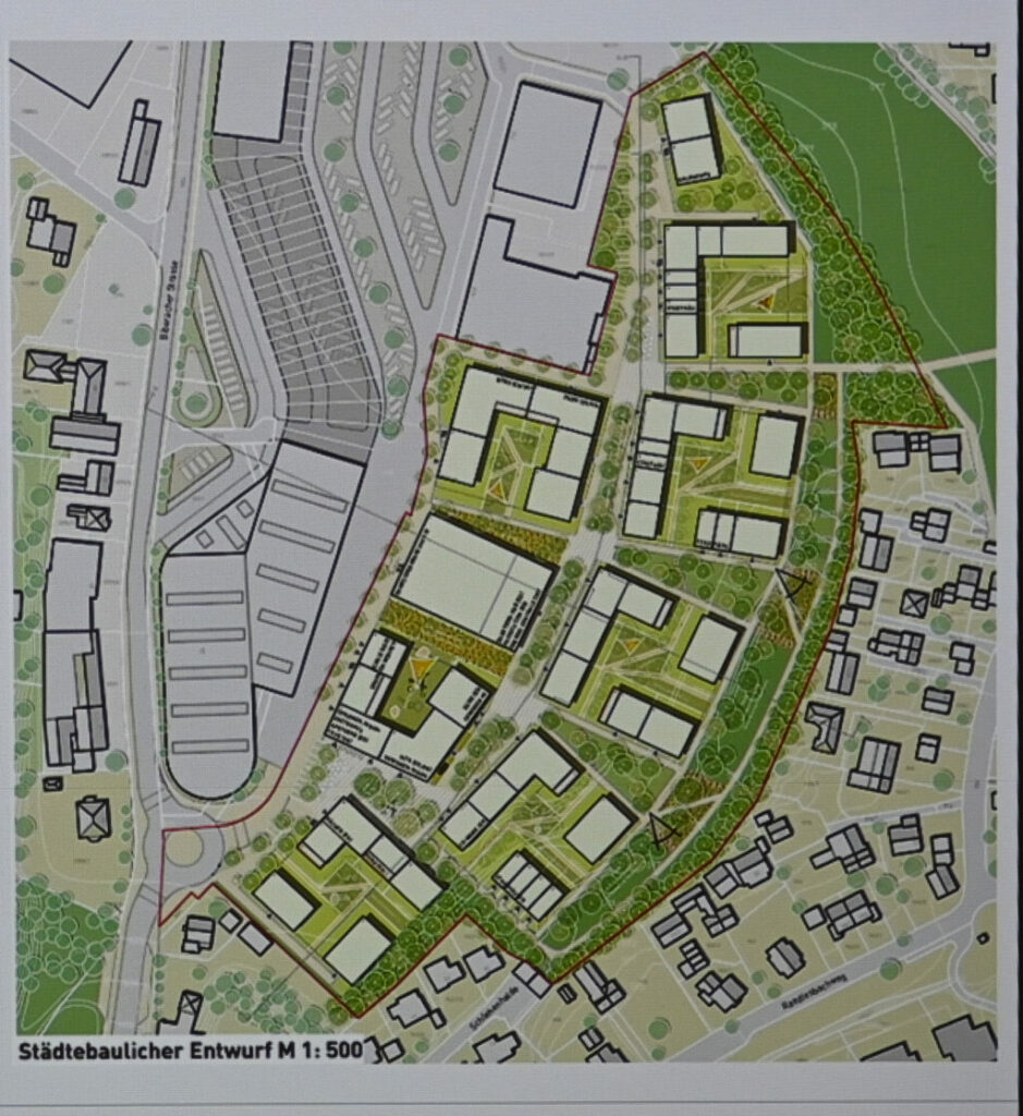
Andreas Deuring, bei i+R Wohnbau Lindau für die Projektentwicklung zuständig, erläuterte dem Gremium die Planung. Die wesentlichen Punkte, die für den Siegerplan sprachen, hob Deuring nochmals hervor: das robuste und flexible Konzept, auf dessen Grundlage das Entwicklungsgebiet in hoher Qualität entwickelt werden kann; die breite „Grüne Fuge“ als Trennung zum Bestandsgebiet Eschle; Bebauung in sieben weitgehend gleichmäßig großen Bauabschnitten; stimmig positionierte Freiräume; ie Zufahrt für den motorisierten Verkehr erfolgt von der Biberacher Straße her.
Die Basis der Planung
Der Siegerplan dient als Vorentwurf zur weiteren Überarbeitung mit der Stadtverwaltung. Die weitere Ausarbeitung des Plans aufgrund dieser Basis wird voraussichtlich ein Dreivierteljahr in Anspruch nehmen. Danach folgen der Aufstellungsbeschluss und der Beginn des Bebauungsplanverfahrens. Das wird voraussichtlich drei Jahre dauern.
Stimmen aus dem Gemeinderat
Benno Schultes (FWV) erkundigte sich nach den Zufahrten und den Geschosshöhen. Für die Zufahrt ist momentan ein Kreisverkehr an der Biberacher Straße vorgesehen. Die Gebäude sollen zwischen drei und sechs Geschosse bekommen. Rita König (SPD) wollte wissen, wieviel Prozent des Wohnraums auf sozialen Wohnungsbau entfielen. Eine Zahl konnte Deuring ad hoc nicht nennen. Er verwies auf eine detaillierte Auflistung in der Wettbewerbsausschreibung. Erst beim Punkt Verschiedenes, als die Vertreter der i+R-Unternehmensgruppe nicht mehr im Saal waren, fragte ein sichtlich verschnupfter Jörg Kirn (Grüne), warum die Presse vor dem Gemeinderat informiert worden wäre. Bürgermeisterin Ludy antwortete, dass es sich um ein privates und kein kommunales Bauprojekt handele. Die Informationspolitik sei Sache des Unternehmens.
Insgesamt hat der Gemeinderat das Projekt wohlwollend zur Kenntnis genommen. Beschlüsse waren in diesem Stadium des Verfahrens nichts fassen.
Fakten zur i+R-Gruppe
Eigentümergeführtes Familienunternehmen
Tätigkeitsfelder Bauen – Immobilien – Bagger
Unternehmenszentrale in Lauterach in Österreich
Niederlassungen in Österreich, Deutschland, Schweiz, Südtirol, Osteuropa
Umsatz: ca. 550 Mio. Euro
Eigenkapital: 200 Mio. Euro
Mitarbeiter: ca. 1000
Lehrlinge: 85
Erwin Linder

Siegerentwurf. Rechts unten Bestand Rädlesbachweg. Grün unterlegt: Neue Planung. Links oben: Erwin-Hymer-Center. Lageplan: Stadt (citiplan GmbH gemeinsam mit Sigmund Landschaftsarchitekten GmbH)







